In 2022, as our church family fasted and prayed, God graciously provided us a piece of land that was not for sale! And so began our planning and preparation to put a physical structure on the property. What follows below are renderings of our building, the building plans, and pictures of the progress! We are excited to watch God continue to work in the lives of His people during this construction progress. A physical building is certainly not needed in order for the Kingdom of God to advance in our world, and for the work of discipleship and loving our neighbor to continue. Our hope has never been in a building or to have a place we call "home". However, even as we have been a nomadic church since our beginnings in 2011, our loving Lord has seen fit to provide an outpost here in Hampstead from which to love, serve, and disciple the people in our community that God brings here.

Phase 1 and 2 Front Rendering

Phase 1 and 2 Rear Rendering

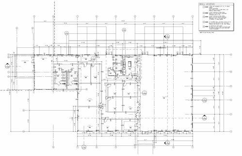
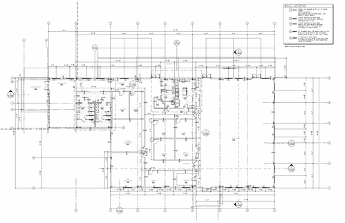
Phase 1 Floor Plan

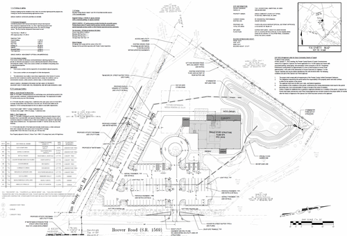
Phase 1 Site Plan











